Mietwohnungen: Tafang 13, 6341 Ebbs

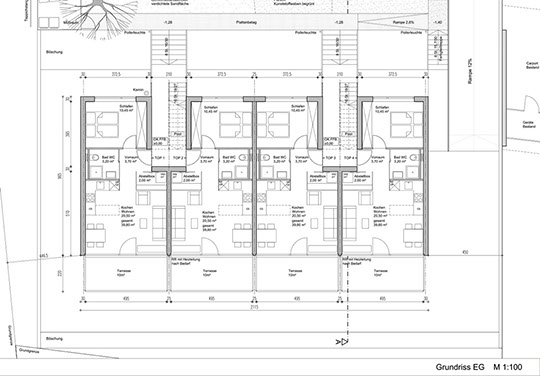
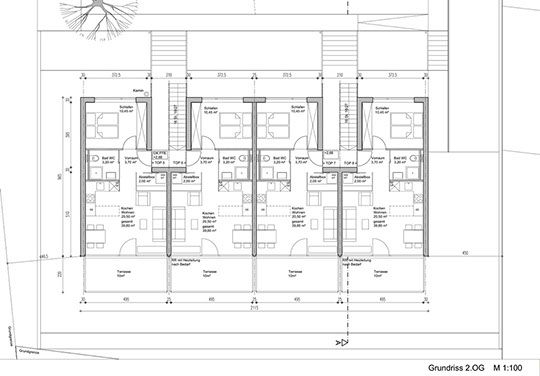
Wohnungen

 

 

 

 

 

Wohnhäuser

 

 

 

 

 

 

Wohn-/Nutzfläche: 39,8 m2

Abmessungen:

 

Kochen/Wohnen/Essen

Bad/WC

Vorraum/Garderobe

Abstellbox

Schlafzimmer

Terrasse

 

 

20,50 m2

3,20 m2

3,70 m2

2,00 m2

10,45 m2

10,00 m2

 

Pläne als PDF

LUCASA Liegenschaftsverwaltungs GmbH | Langkampfner Straße 4 | 6330 Kufstein | lucasa@lucasa.at | Impressum Datenschutzerklärung