Mietwohnungen: Eichelwang 24, 6330 Ebbs-Eichelwang

Wohnungen

 

 

 

 

 

Wohnhäuser

 

 

 

 

 

 

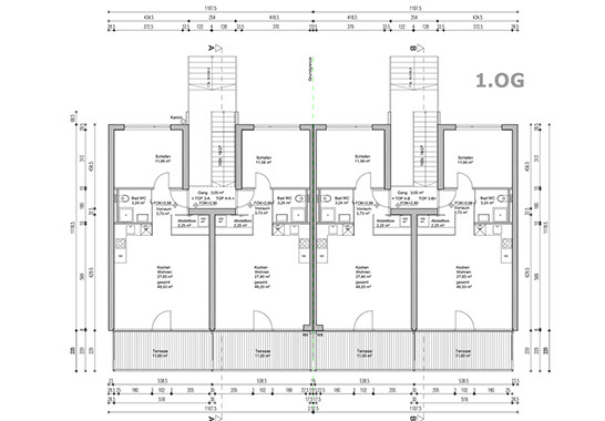
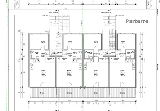
Wohn-/Nutzfläche: 48,2 m2

Abmessungen:

 

Kochen/Wohnen/Essen

Bad/WC

Vorraum/Garderobe

Abstellbox

Schlafzimmer

Terrasse

 

 

27,65 m2

3,24 m2

3,73 m2

2,25 m2

11,66 m2

11,00 m2

 

Pläne als PDF

LUCASA Liegenschaftsverwaltungs GmbH | Langkampfner Straße 4 | 6330 Kufstein | lucasa@lucasa.at | Impressum Datenschutzerklärung